Дом / коттедж / дача, Кривцы, Приозёрная 67А, цена 11850000 руб.
Московская область, Раменское,
Кривцы с., Приозёрная 67А
Растояние от МКАД: 30
11 850 000 руб.
Шоссе: Новорязанское
Кривцы с., Приозёрная 67А
Растояние от МКАД: 30
11 850 000 руб.
Шоссе: Новорязанское
Площадь строения: 160 м²
Площадь участка: 5 соток
Материал стен: Кирпич
Кадастровый номер: 50:23:0040225:2197
Этажей: 2
Газ: Есть
Бассейн: Нет
Сауна: Нет
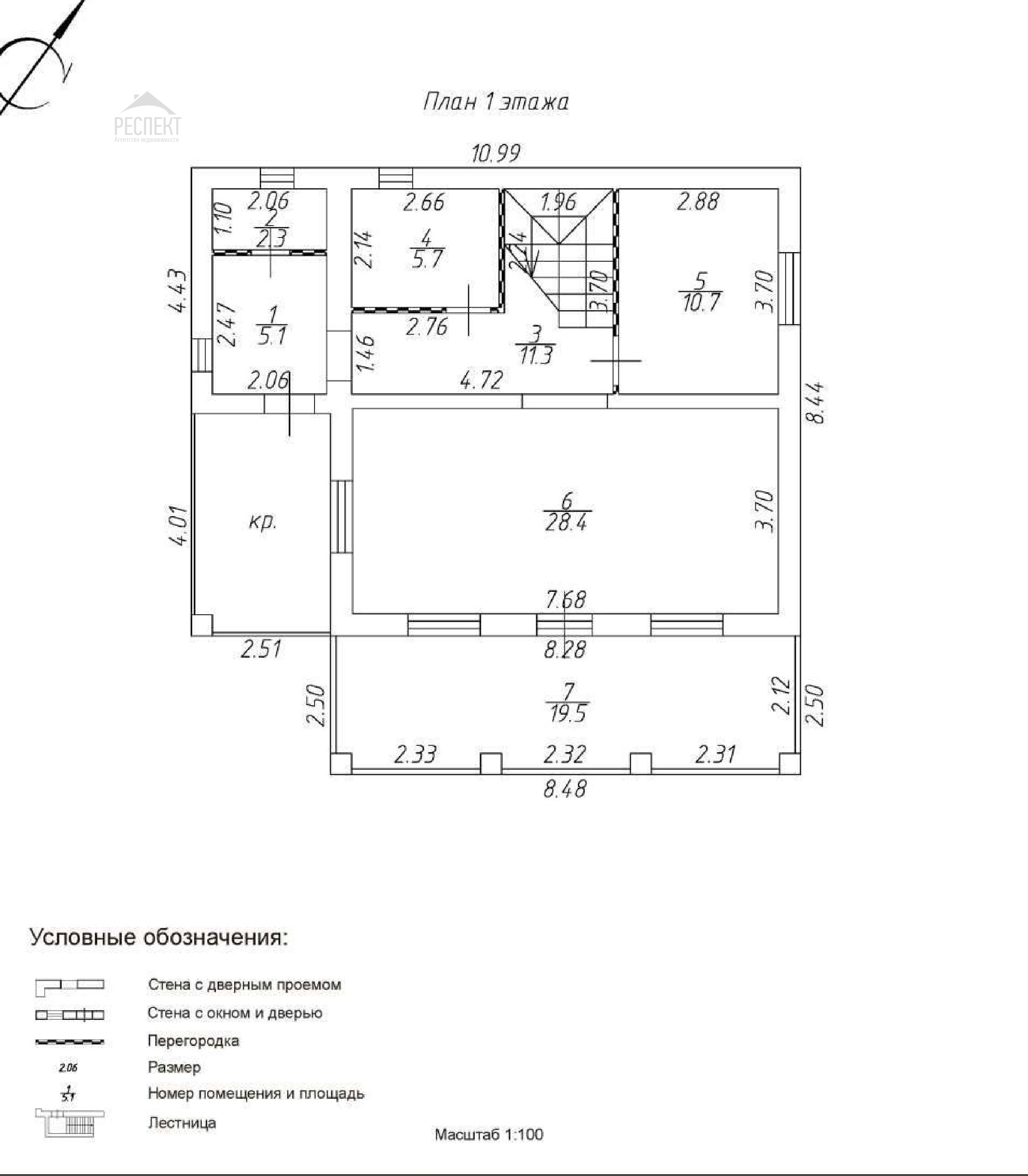
Продаётся новый дом из газоблока 160 м² на участке 5 соток в с. Кривцы Раменского района, 30 км от МКАД по Новорязанскому шоссе. Дом полностью готов к проживанию. Газ по границе участка, у соседей есть. Категория земель: "земли населённых пунктов" (ИЖС). Документы готовы к сделке: участок и дом зарегистрированы и имеют кадастровые номера (ЕГРН на дом и участок). Планировка: 1-й этаж: прихожая, бойлерная, санузел, кухня-гостиная, изолированная комната, веранда. 2-й этаж: три комнаты, гардеробная, второй санузел и балкон. Внутренняя отделка: 1-й этаж - на полу плитка, стены отштукатурены и покрашены качественной краской, потолки натяжные. 2-й этаж – На полу ламинат, стены так же покрашены, потолки натяжные. Технические характеристики: Фундамент ленточный (глубокий) + стяжка на первом этаже. Перекрытия между первым и вторым этажами бетонные плиты. Электричество 15 кВт, три фазы: разведено по дому. Отопление от электрокотла: на первом этаже - водяной тёплый пол, на втором – батареи. Горячая и холодная вода. Водоснабжение от своей скважины, канализация – кольца. Окна пластиковые двухкамерные. Крыша - металлочерепица. Участок огорожен забором. Инфраструктура: В пешей доступности: автобусная остановка и продуктовый магазин. До г. Бронницы со всей городской инфраструктурой 5 минут ехать. В 2 км река Москва. Работаем со многими банками, при выборе этого дома бесплатно одобрим Вам ипотеку. Сопровождаем сделку до вступления Вами в собственность. Можем построить дом на вашем участке.
Площадь участка: 5 соток
Материал стен: Кирпич
Кадастровый номер: 50:23:0040225:2197
Этажей: 2
Газ: Есть
Бассейн: Нет
Сауна: Нет
Продаётся новый дом из газоблока 160 м² на участке 5 соток в с. Кривцы Раменского района, 30 км от МКАД по Новорязанскому шоссе. Дом полностью готов к проживанию. Газ по границе участка, у соседей есть. Категория земель: "земли населённых пунктов" (ИЖС). Документы готовы к сделке: участок и дом зарегистрированы и имеют кадастровые номера (ЕГРН на дом и участок). Планировка: 1-й этаж: прихожая, бойлерная, санузел, кухня-гостиная, изолированная комната, веранда. 2-й этаж: три комнаты, гардеробная, второй санузел и балкон. Внутренняя отделка: 1-й этаж - на полу плитка, стены отштукатурены и покрашены качественной краской, потолки натяжные. 2-й этаж – На полу ламинат, стены так же покрашены, потолки натяжные. Технические характеристики: Фундамент ленточный (глубокий) + стяжка на первом этаже. Перекрытия между первым и вторым этажами бетонные плиты. Электричество 15 кВт, три фазы: разведено по дому. Отопление от электрокотла: на первом этаже - водяной тёплый пол, на втором – батареи. Горячая и холодная вода. Водоснабжение от своей скважины, канализация – кольца. Окна пластиковые двухкамерные. Крыша - металлочерепица. Участок огорожен забором. Инфраструктура: В пешей доступности: автобусная остановка и продуктовый магазин. До г. Бронницы со всей городской инфраструктурой 5 минут ехать. В 2 км река Москва. Работаем со многими банками, при выборе этого дома бесплатно одобрим Вам ипотеку. Сопровождаем сделку до вступления Вами в собственность. Можем построить дом на вашем участке.
Продажа квартир
Аренда квартир
Загородная недвижимость
Коммерческая недвижимость
Элитная недвижимость