Дом / коттедж / дача, Ефимоново, 57, цена 15000000 руб.
Московская область, г Истра,
Ефимоново д., 57
Растояние от МКАД: 50
15 000 000 руб.
Шоссе: Новорижское
Ефимоново д., 57
Растояние от МКАД: 50
15 000 000 руб.
Шоссе: Новорижское
Площадь строения: 150 м²
Площадь участка: 6 соток
Материал стен: Кирпич
Кадастровый номер: 50:08:0070278:1031
Этажей: 1
Газ: Нет
Бассейн: Нет
Сауна: Нет
Предлагается новый дом 150 м2 – по внешнему контуру, (125 м2 – жилая площадь), в коттеджном посёлке Престиж, д. Ефимоново Истринского ГО, 50 км от МКАД по скоростному Новорижскому шоссе. В 10 минутах езды от Истры. В продаже новая линейка домов от 85 до 150 м2, есть выбор.
Цена указана за комплектацию дома whine box. Подходит под любую ипотечную программу, СЕМЕЙНУЮ ИПОТЕКУ от застройщика без переплат и комиссий. Фиксированная цена и полная прозрачность. Возможно, использования маткапитала. Работаем со всеми банками.
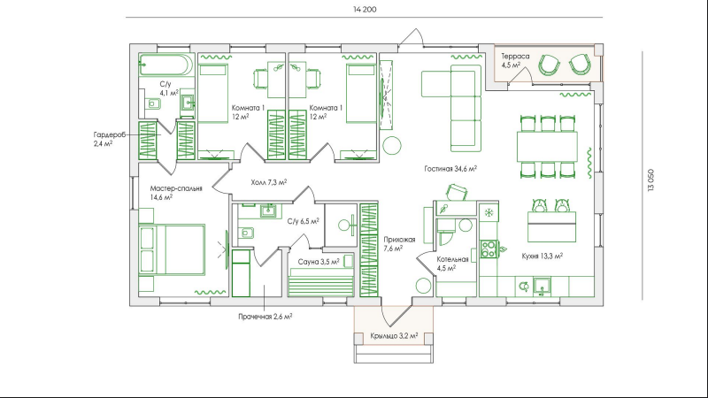
ПЛАНИРОВКА. Прихожая, три комнаты, два санузла, бойлерная просторная кухня-гостиная 29 м2 с выходом на террасу.
КОММУНИКАЦИИ. Электричество: три фазы - 15 кВт, разведено по дому. Отопление от электрокотла с Wi-Fi-управлением, по всему дому плитка и водяной тёплый пол. Горячая и холодная вода, свои собственные септик и скважина, вентиляция, уличная подсветка входов с установленными светильниками, уличная розетка, вывод воды на улицу. Кабельный интернет
Фундамент - монолитная плита с утеплением. Стена: блок 40 см толщиной, вент зазор и кирпич. Возможны три варианта цветовой гаммы на выбор при внутренней отделке.
ИНФРАСТРУКТУРА. Удобное расположение в 10 минутах от Истры, это наличие всей социальной инфраструктуры в непосредственной близости: сетевые магазины, детские сады, школы, медучреждения и возможность жить в частом доме загородом.
Площадь участка: 6 соток
Материал стен: Кирпич
Кадастровый номер: 50:08:0070278:1031
Этажей: 1
Газ: Нет
Бассейн: Нет
Сауна: Нет
Предлагается новый дом 150 м2 – по внешнему контуру, (125 м2 – жилая площадь), в коттеджном посёлке Престиж, д. Ефимоново Истринского ГО, 50 км от МКАД по скоростному Новорижскому шоссе. В 10 минутах езды от Истры. В продаже новая линейка домов от 85 до 150 м2, есть выбор.
Цена указана за комплектацию дома whine box. Подходит под любую ипотечную программу, СЕМЕЙНУЮ ИПОТЕКУ от застройщика без переплат и комиссий. Фиксированная цена и полная прозрачность. Возможно, использования маткапитала. Работаем со всеми банками.
ПЛАНИРОВКА. Прихожая, три комнаты, два санузла, бойлерная просторная кухня-гостиная 29 м2 с выходом на террасу.
КОММУНИКАЦИИ. Электричество: три фазы - 15 кВт, разведено по дому. Отопление от электрокотла с Wi-Fi-управлением, по всему дому плитка и водяной тёплый пол. Горячая и холодная вода, свои собственные септик и скважина, вентиляция, уличная подсветка входов с установленными светильниками, уличная розетка, вывод воды на улицу. Кабельный интернет
Фундамент - монолитная плита с утеплением. Стена: блок 40 см толщиной, вент зазор и кирпич. Возможны три варианта цветовой гаммы на выбор при внутренней отделке.
ИНФРАСТРУКТУРА. Удобное расположение в 10 минутах от Истры, это наличие всей социальной инфраструктуры в непосредственной близости: сетевые магазины, детские сады, школы, медучреждения и возможность жить в частом доме загородом.
Продажа квартир
Аренда квартир
Загородная недвижимость
Коммерческая недвижимость
Элитная недвижимость