Дом / коттедж / дача, КП Есенино (деревня Шахово), 193, цена 13100000 руб.
Московская область, Домодедово,
КП Есенино (деревня Шахово) тер., 193
Растояние от МКАД: 40
13 100 000 руб.
Шоссе: Новокаширское
КП Есенино (деревня Шахово) тер., 193
Растояние от МКАД: 40
13 100 000 руб.
Шоссе: Новокаширское
Площадь строения: 150 м²
Площадь участка: 6 соток
Материал стен: Пеноблоки
Кадастровый номер: 50:28:0090219:1104
Этажей: 2
Газ: Нет
Бассейн: Нет
Сауна: Нет
Предлагается новый дом, готовый к проживанию. Дом из газоблока + отделочный кирпич. 150 кв. м на участке 5.55 соток, в КП Есенино, рядом с селом Успенское ГО Домодедово. Подходит под семейную ипотеку.
40 км от МКАД по скоростному Новокаширскому шоссе (М4). Участок прямоугольный прямой, расположен на берегу живописного озера, с прекрасным видом.
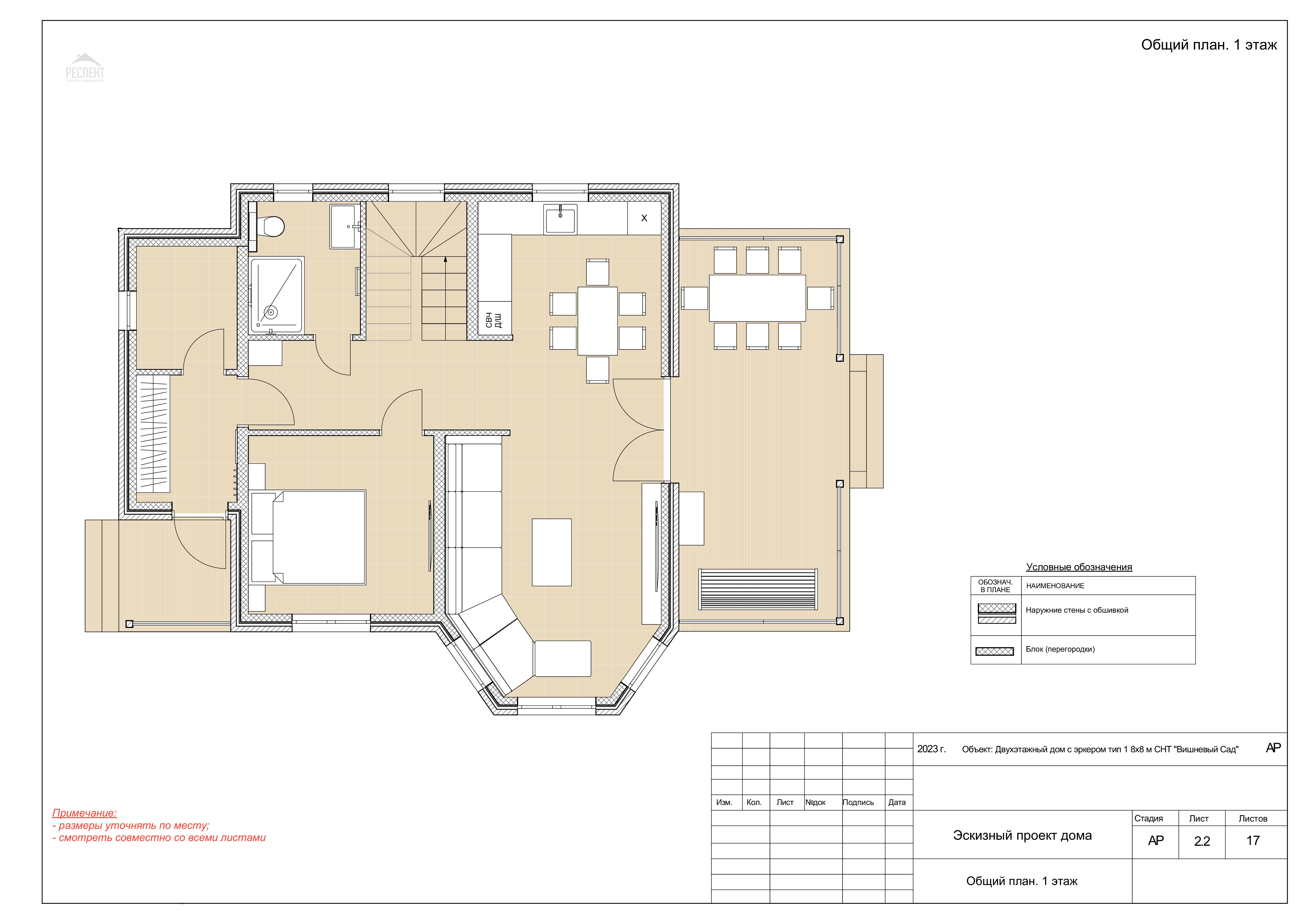
Планировка: 1-й этаж: прихожая, просторная кухня-гостиная, комната, санузел и бойлерная, веранда.
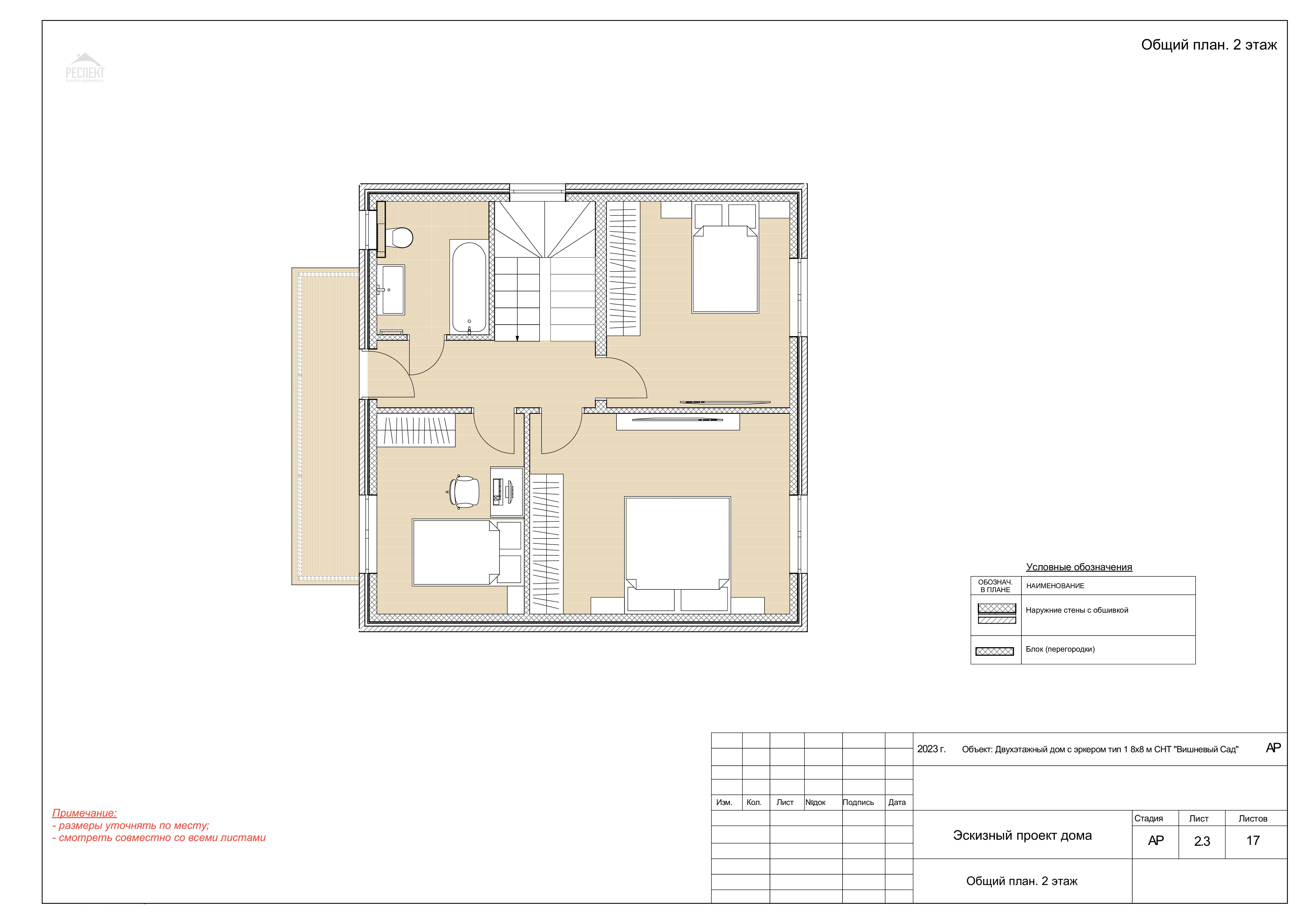
2-й этаж: холл, три комнаты, санузел, балкон.
Комплектация: фундамент – монолитная плита + ростверк. Стена: газоблок 25 см + утепление 10 см + фасадная панель. Утепление потолка 15 см. Водоснабжение от своей скважины. Канализация. Отопление от электрокотла. Электричество 15 кВт. На первом этаже, водяной тёплый пол. Установлена сантехника. Входная дверь - металлическая; крыша - металлочерепица. Дом полностью отделан и готов к круглогодичному комфортному проживанию, без дополнительных вложений. Участок огорожен забором.
Работаем с ведущими банками России. Строим дома в семейную ипотеку, можем построить на вашем участке.
Площадь участка: 6 соток
Материал стен: Пеноблоки
Кадастровый номер: 50:28:0090219:1104
Этажей: 2
Газ: Нет
Бассейн: Нет
Сауна: Нет
Предлагается новый дом, готовый к проживанию. Дом из газоблока + отделочный кирпич. 150 кв. м на участке 5.55 соток, в КП Есенино, рядом с селом Успенское ГО Домодедово. Подходит под семейную ипотеку.
40 км от МКАД по скоростному Новокаширскому шоссе (М4). Участок прямоугольный прямой, расположен на берегу живописного озера, с прекрасным видом.
Планировка: 1-й этаж: прихожая, просторная кухня-гостиная, комната, санузел и бойлерная, веранда.
2-й этаж: холл, три комнаты, санузел, балкон.
Комплектация: фундамент – монолитная плита + ростверк. Стена: газоблок 25 см + утепление 10 см + фасадная панель. Утепление потолка 15 см. Водоснабжение от своей скважины. Канализация. Отопление от электрокотла. Электричество 15 кВт. На первом этаже, водяной тёплый пол. Установлена сантехника. Входная дверь - металлическая; крыша - металлочерепица. Дом полностью отделан и готов к круглогодичному комфортному проживанию, без дополнительных вложений. Участок огорожен забором.
Работаем с ведущими банками России. Строим дома в семейную ипотеку, можем построить на вашем участке.
Продажа квартир
Аренда квартир
Загородная недвижимость
Коммерческая недвижимость
Элитная недвижимость















