Дом / коттедж / дача, Трошково Светлое, Тютчева 1010, цена 8300000 руб.
Московская область, Раменский,
Трошково Светлое кп., Тютчева 1010
Растояние от МКАД: 45
8 300 000 руб.
Шоссе: Егорьевское
Трошково Светлое кп., Тютчева 1010
Растояние от МКАД: 45
8 300 000 руб.
Шоссе: Егорьевское
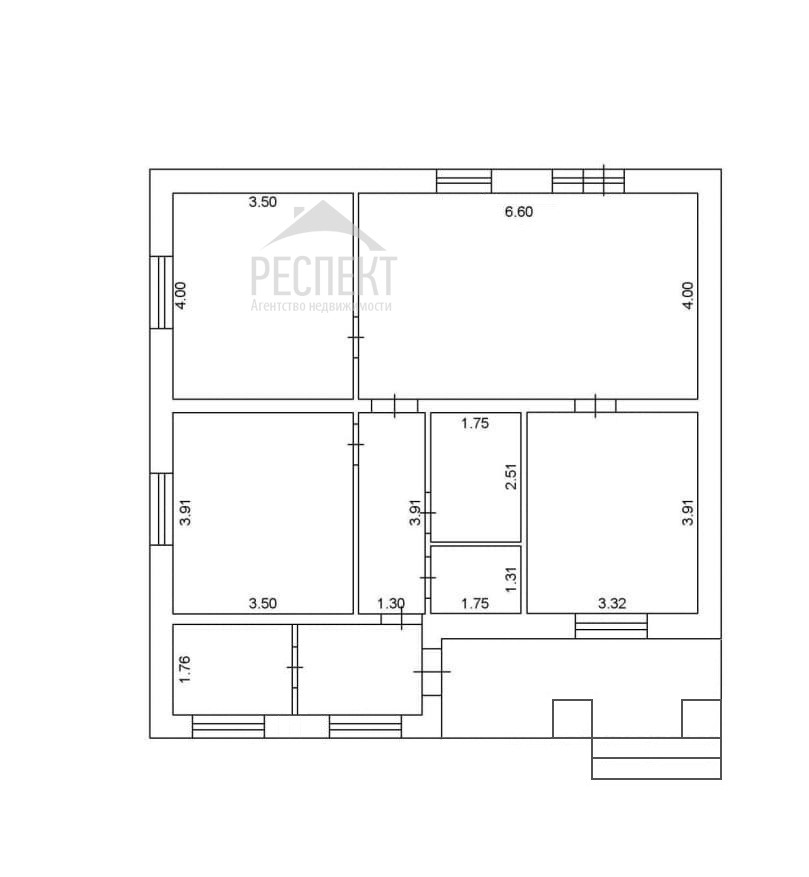
Площадь строения: 111 м²
Площадь участка: 7 соток
Материал стен: Пеноблоки
Кадастровый номер: 50:23:0020392:1507
Этажей: 1
Газ: Есть
Бассейн: Нет
Сауна: Нет
ДОМ РЕАЛЬНЫЙ (ПОЛНАЯ ГОТОВНОСТЬ 2 МЕСЯЦА)!
ПОДХОДИТ ПОД СЕМЕЙНУЮ ИПОТЕКУ!
СТОИМОСТЬ УКАЗАНА ЗА КОНСТРУКТИВ ДОМА С ОТДЕЛКОЙ WHITE BOX - БЕЛЫЙ КУПОЛ - ВКЛЮЧЕНА В СТОИМОСТЬ!
Вашему вниманию предлагается прекрасный дом из блока с внешней отделкой кирпичом (варианты кирпича на выбор) на отличном участке в развитом Коттеджном поселке Трошково Светлое от Застройщика! Улица Тютчева (и другие в данном КП)!
Подходит под любую ипотечную программу (семейная и IT)!
Участок правильной формы - прямоугольный, 7 соток! Дом 111 кв.м, качественная отделка "white box - белый купол" включена в стоимость, как доп можно выполнить полный Евро-ремонт, так же возможно рассмотреть дом в "коробке, без отделки", 3 спальни, кухня-гостиная, 2 санузла - раздельные, техническое посещение, отдельная прихожая и крыльцо!
ГАЗ уже заведен на поселок! На въезде через КПП имеется гостевая парковка и неподалеку от нее своя газовая станция!
В поселке охраняемая территория, гравийные добротные дороги, активная застройка местности жилыми круглогодичными домами, видеонаблюдение, въезд только через КПП. В соседнем поселке в 2 км - школа, детский садик. Ж/Д станция Гжель в 2-х км от поселка, на авто 4 минуты. От МКАД 1 час на авто.
Категория земель: Земли сельскохозяйственного назначения. Вид разрешенного использования: Для дачного строительства с правом возведения жилого дома с правом регистрации проживания в нем.
Оперативный показ! Быстрый выход на сделку!
Имеются варианты из чего выбрать на местности!
Уважаемые клиенты, предлагаем Вам строительство любого Загородного дома на Вашем или на приобретаемом Земельном участке по отличным ценам напрямую от нас! Мы - Профессиональный Застройщик Респект-Строй и Агентство Недвижимости Респект!
Площадь участка: 7 соток
Материал стен: Пеноблоки
Кадастровый номер: 50:23:0020392:1507
Этажей: 1
Газ: Есть
Бассейн: Нет
Сауна: Нет
ДОМ РЕАЛЬНЫЙ (ПОЛНАЯ ГОТОВНОСТЬ 2 МЕСЯЦА)!
ПОДХОДИТ ПОД СЕМЕЙНУЮ ИПОТЕКУ!
СТОИМОСТЬ УКАЗАНА ЗА КОНСТРУКТИВ ДОМА С ОТДЕЛКОЙ WHITE BOX - БЕЛЫЙ КУПОЛ - ВКЛЮЧЕНА В СТОИМОСТЬ!
Вашему вниманию предлагается прекрасный дом из блока с внешней отделкой кирпичом (варианты кирпича на выбор) на отличном участке в развитом Коттеджном поселке Трошково Светлое от Застройщика! Улица Тютчева (и другие в данном КП)!
Подходит под любую ипотечную программу (семейная и IT)!
Участок правильной формы - прямоугольный, 7 соток! Дом 111 кв.м, качественная отделка "white box - белый купол" включена в стоимость, как доп можно выполнить полный Евро-ремонт, так же возможно рассмотреть дом в "коробке, без отделки", 3 спальни, кухня-гостиная, 2 санузла - раздельные, техническое посещение, отдельная прихожая и крыльцо!
ГАЗ уже заведен на поселок! На въезде через КПП имеется гостевая парковка и неподалеку от нее своя газовая станция!
В поселке охраняемая территория, гравийные добротные дороги, активная застройка местности жилыми круглогодичными домами, видеонаблюдение, въезд только через КПП. В соседнем поселке в 2 км - школа, детский садик. Ж/Д станция Гжель в 2-х км от поселка, на авто 4 минуты. От МКАД 1 час на авто.
Категория земель: Земли сельскохозяйственного назначения. Вид разрешенного использования: Для дачного строительства с правом возведения жилого дома с правом регистрации проживания в нем.
Оперативный показ! Быстрый выход на сделку!
Имеются варианты из чего выбрать на местности!
Уважаемые клиенты, предлагаем Вам строительство любого Загородного дома на Вашем или на приобретаемом Земельном участке по отличным ценам напрямую от нас! Мы - Профессиональный Застройщик Респект-Строй и Агентство Недвижимости Респект!
Продажа квартир
Аренда квартир
Загородная недвижимость
Коммерческая недвижимость
Элитная недвижимость





















