Дом / коттедж / дача, Трошково Светлое, Цветаевой 299, цена 8550000 руб.
Московская область, Раменское,
Трошково Светлое тер., Цветаевой 299
Растояние от МКАД: 39
8 550 000 руб.
Шоссе: Егорьевское
Трошково Светлое тер., Цветаевой 299
Растояние от МКАД: 39
8 550 000 руб.
Шоссе: Егорьевское
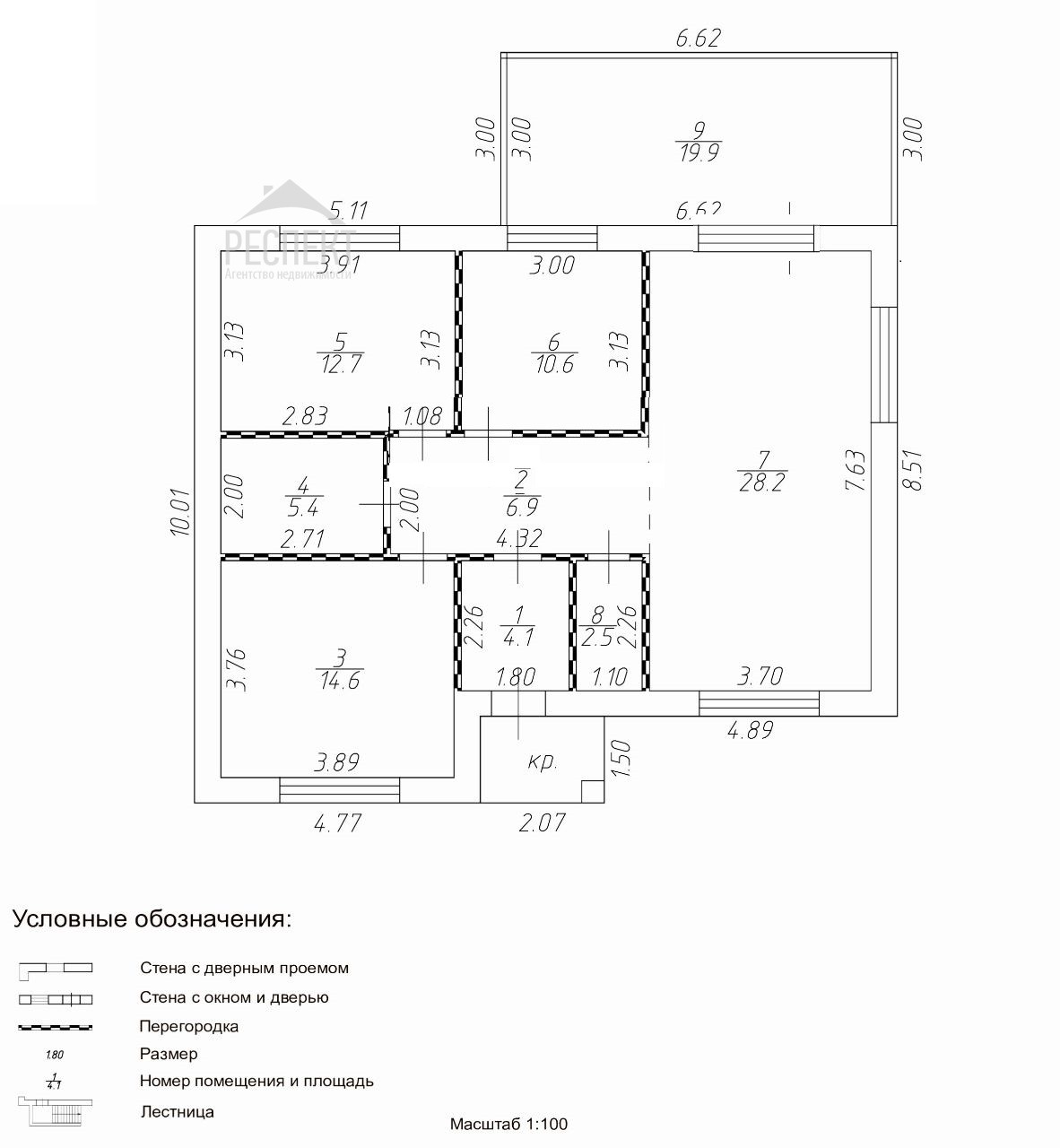
Площадь строения: 110 м²
Площадь участка: 6 соток
Материал стен: Пеноблоки
Кадастровый номер: 50:23:0020392:1153
Этажей: 1
Газ: Нет
Бассейн: Нет
Сауна: Нет
Предлагается НОВЫЙ ДОМ 110 м² на участке 6 соток в Раменском ГО, КП «Трошково Светлое», подходит под программу семейной ипотеки, под строительство.
ВЫГОДА И БЕЗОПАСНОСТЬ СДЕЛКИ
- Цена за дом под ключ: В стоимость включено всё – от строительства до чистовой отделки. Никаких скрытых платежей и дополнительных вложений.
- Аккредитованный застройщик Сбербанка: Максимальная надежность и прозрачность на всех этапах. Вы можете приобрести, как готовый дом так и выйти на сделку с подрядом на строительство под вас.
- Все виды ипотеки на льготных условиях: ПОДХОДИТ ПОД СЕМЕЙНУЮ ИПОТЕКУ (в т.ч. с материнским капиталом), льготные программы, военную ипотеку. Мы бесплатно поможем получить одобрение в банках-партнерах.
О ДОМЕ:
• Статус: В процессе строительства.
• Площадь: 110 кв.м. + просторная веранда.
• Участок: 6 соток в охраняемом коттеджном посёлке.
• Технология строительства: Капитальные стены из блоков с утеплением и штукатуркой. Энергоэффективность, долговечность и эстетичный внешний вид.
ПЛАНИРОВКА
Вас ждет просторное и светлое пространство: прихожая, большая кухня-гостиная — идеальное место для семейных вечеров, три изолированные комнаты для уединенного отдыха и работы, санузел, бойлерная и уютная веранда.
КОММУНИКАЦИИ «под ключ» для жизни круглый год:
Дом полностью автономен и не требует никаких вложений в инфраструктуру:
• КП в процессе газификации.
• Отопление: Электрический котел и водяные теплые полы во всех помещениях для равномерного и экономичного обогрева.
• Чистовая отделка: Качественная плитка и покрашенные стены.
• Электроснабжение: Выделенная мощность 15 кВт (3 фазы), разведенная по дому.
• Водоснабжение и канализация: водопровод от своей скважины и современная станция биологической очистки «Астра 5».
РАСПОЛОЖЕНИЕ и ИНФРАСТРУКТУРА:
• Транспортная доступность: Всего 39 км от МКАД по Новорязанскому шоссе. Около 20 минут на автомобиле до г. Раменское.
• В пешей доступности (10 мин): остановка общественного транспорта, сетевые супермаркеты, рынки, поликлиника, аптека, школа, детский сад и ж/д станция Гжель.
• Отдых и экология: Охраняемый, благоустраиваемый посёлок в окружении лесов и водоемов. Подъезд к дому – твёрдая асфальтированная крошка.
________________________________________
P.S. Цена указана без учёта стоимости участка.
Мы - Профессиональный Застройщик Респект-Строй и Агентство Недвижимости Респект! Строим загородные дома любой сложности на вашем или приобретаемом участке. Вы можете воспользоваться льготной ипотекой на строительство по нашим проектам.
Площадь участка: 6 соток
Материал стен: Пеноблоки
Кадастровый номер: 50:23:0020392:1153
Этажей: 1
Газ: Нет
Бассейн: Нет
Сауна: Нет
Предлагается НОВЫЙ ДОМ 110 м² на участке 6 соток в Раменском ГО, КП «Трошково Светлое», подходит под программу семейной ипотеки, под строительство.
ВЫГОДА И БЕЗОПАСНОСТЬ СДЕЛКИ
- Цена за дом под ключ: В стоимость включено всё – от строительства до чистовой отделки. Никаких скрытых платежей и дополнительных вложений.
- Аккредитованный застройщик Сбербанка: Максимальная надежность и прозрачность на всех этапах. Вы можете приобрести, как готовый дом так и выйти на сделку с подрядом на строительство под вас.
- Все виды ипотеки на льготных условиях: ПОДХОДИТ ПОД СЕМЕЙНУЮ ИПОТЕКУ (в т.ч. с материнским капиталом), льготные программы, военную ипотеку. Мы бесплатно поможем получить одобрение в банках-партнерах.
О ДОМЕ:
• Статус: В процессе строительства.
• Площадь: 110 кв.м. + просторная веранда.
• Участок: 6 соток в охраняемом коттеджном посёлке.
• Технология строительства: Капитальные стены из блоков с утеплением и штукатуркой. Энергоэффективность, долговечность и эстетичный внешний вид.
ПЛАНИРОВКА
Вас ждет просторное и светлое пространство: прихожая, большая кухня-гостиная — идеальное место для семейных вечеров, три изолированные комнаты для уединенного отдыха и работы, санузел, бойлерная и уютная веранда.
КОММУНИКАЦИИ «под ключ» для жизни круглый год:
Дом полностью автономен и не требует никаких вложений в инфраструктуру:
• КП в процессе газификации.
• Отопление: Электрический котел и водяные теплые полы во всех помещениях для равномерного и экономичного обогрева.
• Чистовая отделка: Качественная плитка и покрашенные стены.
• Электроснабжение: Выделенная мощность 15 кВт (3 фазы), разведенная по дому.
• Водоснабжение и канализация: водопровод от своей скважины и современная станция биологической очистки «Астра 5».
РАСПОЛОЖЕНИЕ и ИНФРАСТРУКТУРА:
• Транспортная доступность: Всего 39 км от МКАД по Новорязанскому шоссе. Около 20 минут на автомобиле до г. Раменское.
• В пешей доступности (10 мин): остановка общественного транспорта, сетевые супермаркеты, рынки, поликлиника, аптека, школа, детский сад и ж/д станция Гжель.
• Отдых и экология: Охраняемый, благоустраиваемый посёлок в окружении лесов и водоемов. Подъезд к дому – твёрдая асфальтированная крошка.
________________________________________
P.S. Цена указана без учёта стоимости участка.
Мы - Профессиональный Застройщик Респект-Строй и Агентство Недвижимости Респект! Строим загородные дома любой сложности на вашем или приобретаемом участке. Вы можете воспользоваться льготной ипотекой на строительство по нашим проектам.
Продажа квартир
Аренда квартир
Загородная недвижимость
Коммерческая недвижимость
Элитная недвижимость













